Haus JK - Untergeschoss Teil 1 Haus JK - Untergeschoss Teil 2 Haus JK - Wohnung J1 Haus JK - Wohnung J2 Haus JK - Wohnung J3 Haus JK - Wohnung J4 Haus JK - Wohnung J5 Haus JK - Wohnung J6 Haus JK - Wohnung J7 Haus JK - Wohnung J8 Haus JK - Wohnung J9 Haus JK - Wohnung K1 Haus JK - Wohnung K2 Haus JK - Wohnung K3 Haus JK - Wohnung K4 Haus JK - Wohnung K5 Haus JK - Wohnung K6 Haus JK - Wohnung K7 Haus JK - Wohnung K8

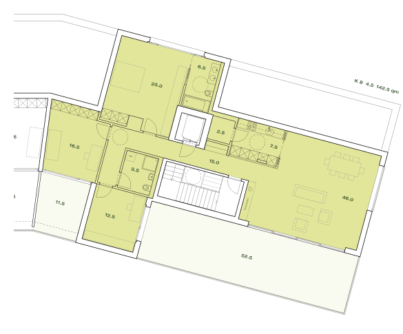
Haus JK - Wohnung K8

Wohnung K8

Attika
4.5-Zimmer-Wohnung
Wohnfläche: 142.5 qm
Terrasse: 63.5 qm
Keller: 18.5 qm
Preis: CHF 1'110'000

Download

An- und Aussichten

Bestellen

Nordpfeil

Häuser AB Häuser CD Haus E Haus F Haus G Haus H Häuser JK