Haus CD - Untergeschoss Teil 1 Haus CD - Untergeschoss Teil 2 Haus CD - Wohnung C1 Haus CD - Wohnung C2 Haus CD - Wohnung C3 Haus CD - Wohnung C4 Haus CD - Wohnung C5 Haus CD - Wohnung C6 Haus CD - Wohnung C7 Haus CD - Wohnung C8 Haus CD - Wohnung C9 Haus CD - Wohnung D1 Haus CD - Wohnung D2 Haus CD - Wohnung D3 Haus CD - Wohnung D4 Haus CD - Wohnung D5 Haus CD - Wohnung D6 Haus CD - Wohnung D7 Haus CD - Wohnung D8

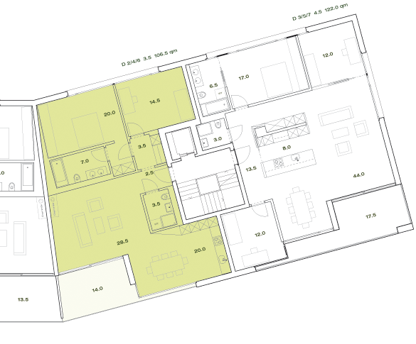
Haus CD - Wohnung D2

Wohnung D2

Obergeschoss
3.5-Zimmer-Wohnung
Wohnfläche: 106.5 qm
Balkon: 14.0 qm
Keller: 11.5 qm
Preis: CHF 640'000

Download

An- und Aussichten

Bestellen

Nordpfeil

Häuser AB Häuser CD Haus E Haus F Haus G Haus H Häuser JK