Haus AB - Untergeschoss Teil 1 Haus AB - Untergeschoss Teil 2 Haus AB - Wohnung A1 Haus AB - Wohnung A2 Haus AB - Wohnung A3 Haus AB - Wohnung A4 Haus AB - Wohnung A5 Haus AB - Wohnung A6 Haus AB - Wohnung A7 Haus AB - Wohnung A8 Haus AB - Wohnung A9 Haus AB - Wohnung B1 Haus AB - Wohnung B2 Haus AB - Wohnung B3 Haus AB - Wohnung B4 Haus AB - Wohnung B5 Haus AB - Wohnung B6 Haus AB - Wohnung B7 Haus AB - Wohnung B8 Haus AB - Wohnung B9

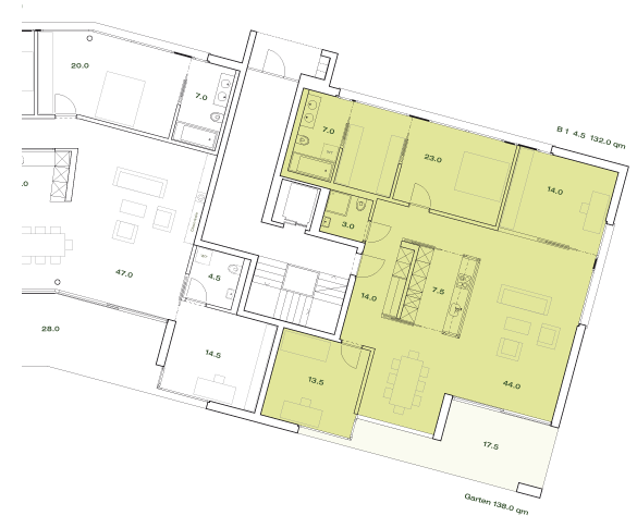
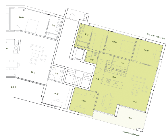
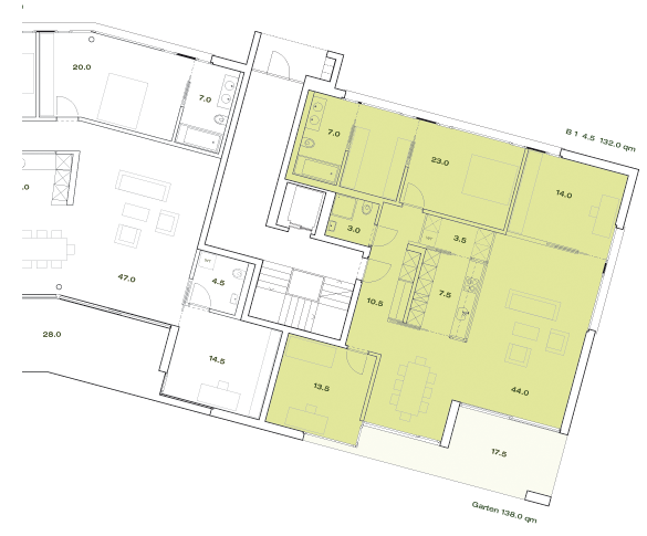
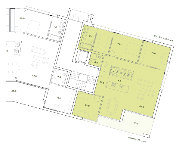
Grundriss Wohnung B1:

Standard  |  Variante 1  |  Variante 2  |  Variante 3

Küche mit Kochinsel

Haus AB - Wohnung B1

Wohnung B1

Erdgeschoss
4.5-Zimmer-Wohnung
Wohnfläche: 132.0 qm
Balkon: 17.5 qm
Garten: 99.9 qm
Keller: 15.5 qm
Preis: CHF 815'000

Download

An- und Aussichten

Bestellen

Nordpfeil

Häuser AB Häuser CD Haus E Haus F Haus G Haus H Häuser JK